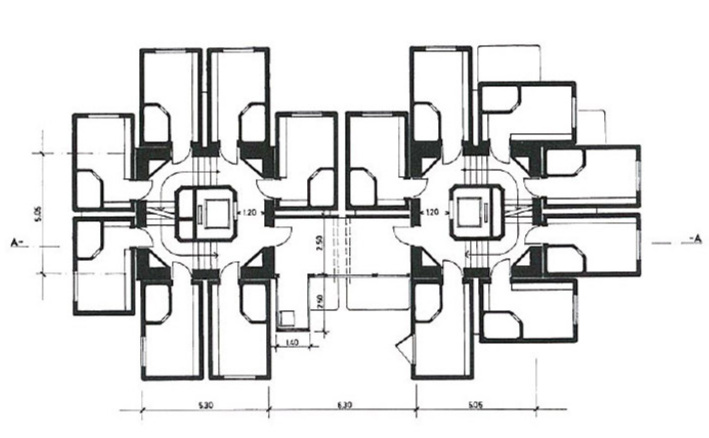
Architect Kisho Kurokawa was very innovative in his creation of the Nakagin Capsule Tower in 1972, which was the first capsule architecture design. The module was created with the intention of housing traveling businessmen that worked in central Tokyo during the week. It is a prototype for architecture of sustainability and recycleability, as each module can be plugged in to the central core and replaced or exchanged when necessary.
Built in the Ginza area of Tokyo, a total of 140 capsules are stacked and rotated at varying angles around a central core, standing 14-stories high. The technology developed by Kurokawa allowed each unit to be installed to the concrete core with only 4 high-tension bolts, which keeps the units replaceable. Each capsule measures 4 x 2.5 meters, permitting enough room for one person to live comfortably. The interior space of each module can be manipulated by connecting the capsule to other capsules.
All pieces of the pods were manufactured in a factory in Shiga Prefecture then transported to the site by truck. The pre-assembled interior features a circular window, built-in bed and bathroom, and is furnished with a TV, radio and alarm clock. Hoisted by a crane, the capsules were inserted in the shipping containers by use of a crane, and then fastened to the concrete core shaft.
The hot water to the building was shut off in 2010.
The capsules can be individually removed or replaced, but only at a cost: in 2006 when demolition was being considered, it was estimated that renovation would require around 6.2 million yen per capsule. 80% of the capsule owners must approve demolition, which was first achieved on April 15, 2007. A majority of capsule owners, citing squalid, cramped conditions as well as concerns over asbestos, voted to demolish the building and replace it with a much larger, more modern tower. In the interest of preserving his design, Kurokawa proposed taking advantage of the flexible design by "unplugging" the existing boxes and replacing them with updated units.
